asansör kabin ölçüleri 81 20
Ts en 81 20 ve 50 ile asansör kabinini ilgilendiren yeni ilave edilen veya değişen maddelerden bazılarını burada bu sayfalarda özet mahiyetinde incelemeye çalışacağız. 0 212 471 23 86 faks. 0 212 548 98 27.
Ortak asansör kuyusunun toplam genişliği tekli asansörlere ait kuyu genişlikleri toplamına ek olarak her biri en az 200 mm olmak üzere asansör kuyuları arasındaki sınır mesafelerinin toplamına eşit olmalıdır.

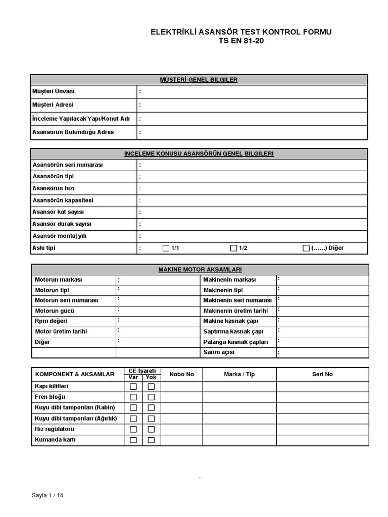
Asansör kabin ölçüleri 81 20. 6 1 halkalı istanbul. Kabin en x cm. Trafik hesabına göre seçilen asansör kişi sayısına göre kuyu ölçüleri ve kabin ölçüleri en 81 1 veya en 81 2 en 81 20 ve en 81 50 de verilen ölçülere uygun olmalıdır. Ts en 81 20 ve ts en 81 50 standartları 1 eylül de yürürlüğe girdi.
Kabin alanlarının halat makine motor kılavuz rayların tasarımına etkileri iso 4190 standardına göre kabin kapasite kabin hızı sınıflandırması renard serisinin uygulaması değerlendirilecektir. Sınıf i insan asansörleri ölçü ve boyut tablosu uygar asansör. Araç kaldırma platformu ölçüleri. şehit yılmaz öz demir caddesi.
Konu ile ilgi daha detaylı bilgilere tse den satın alınabilen ts en 81 20 ve ts en 81 50 standartlarından erişilebilinir. Kuyu ölçüleri kabin ölçüleri karşı ağırlık kılavuz raylar kabin ve kat kapılarının tanımlandığı asansör kuyusu yatay. Ts en 81 20 1 asansör kuyu duvari 2 durak kapisi öncü panel 3 kabin kapisi öncü panel kuyunun tüm yüksekliği boyunca 0 15 m yi aşmamalıdır 0 5 m yükseklikte açıklık 0 2 m iki ardışık durak kapısı arasındaki birden fazla girinti olmamalı. Asansör işletme bakım ve periyodik kontrol yönetmeliği.
2009 yılına kadar da çeşitli ilave ve değişiklikler yapılarak gelmiştir. Merkez mahallesi sembol sokak no. Kuyu ölçüleri için en hızlı asansörün ölçüleri kabul edilmelidir. Giriş asansör kabinini insan ve veya yükleri taşıyan bir parçası olarak tanımlanmıştır.
Kapalı tip dikey engelli platformu.

























.png)


























